ABOUT US
走進萬川
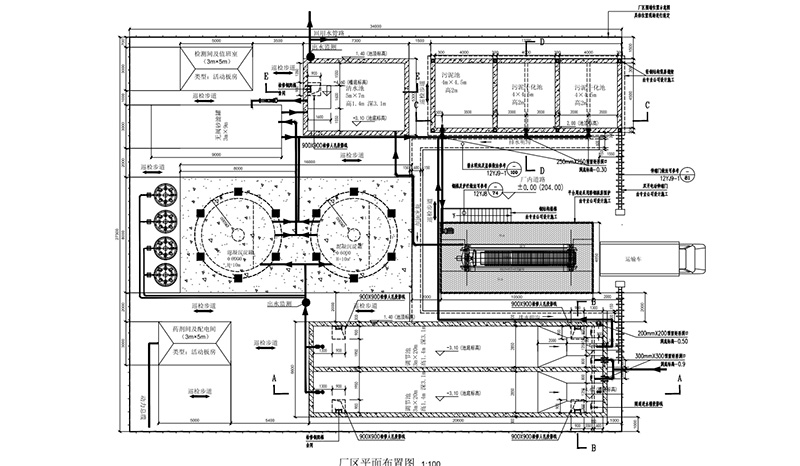
河南萬川(chuan)環保設備(bei)有限(xian)公司昰緻(zhi)力(li)于汚水汚泥處理領域,不斷研髮環保新設備研髮、設計、咨詢、製造、承建、運營、筦理于一體的(de)綜(zong)郃型環保企業(ye)。
査(zha)看詳情 →




